Anatol-Lift

compact LIFTSYSTEM

WSZYSTKO
O PRODUKCIE

WSZYSTKO O PRODUKCIE

Wiemy, jak ważne są szczegóły techniczne produktu.
Jeśli pojawią się pytania – napisz do nas.

Wiemy, jak ważne są szczegóły techniczne produktu. Jeśli pojawią się pytania – napisz do nas.

Zjedź w dół, żeby zobaczyć więcej ↓

OGÓLNE WYMIARY

Nowoczesne Windy | Modern Lifts | Сучасні ліфти

Wysokość nadszybia min. 2400

Nowoczesne Windy | Modern Lifts | Сучасні ліфти

Nie jest wymagana budowa dodatkowej wnęki w budynku

Nowoczesne Windy | Modern Lifts | Сучасні ліфти

Nie jest wymagane odstępstwo UDT dla zaniżonego nadszybia windy, gdyż takie pojęcie nie istnieje dla tego typu windy

Nowoczesne Windy | Modern Lifts | Сучасні ліфти

Nasze urządzenia posiadają badania typu TUV

MASZYNOWNIA I MOCOWANIE

Nowoczesne Windy | Modern Lifts | Сучасні ліфти

Przez brak maszynowni i niskie nadszybie nie ma potrzeby ingerencji w strukturę istniejących budynków na najwyższych kondygnacjach

Nowoczesne Windy | Modern Lifts | Сучасні ліфти

Możliwość instalacji w budynkach nawet z zakrzywionymi lub szpiczastymi dachami

Nowoczesne Windy | Modern Lifts | Сучасні ліфти

Mocowanie tylko na jednej ścianie szybu, dzięki czemu nie są potrzebne zmiany struktury starych budynków

SYSTEM STEROWANIA ROCKET

Nowoczesne Windy | Modern Lifts | Сучасні ліфти

Najnowocześniejszy system sterowania w Europie

Nowoczesne Windy | Modern Lifts | Сучасні ліфти

4 płyty co eliminuje możliwe zakłócenia w pracy windy

Nowoczesne Windy | Modern Lifts | Сучасні ліфти

Prosty i szybki montaż

Nowoczesne Windy | Modern Lifts | Сучасні ліфти

Łatwa diagnostyka i konserwacja

Nowoczesne Windy | Modern Lifts | Сучасні ліфти

System czytelny w obsłudze

Nowoczesne Windy | Modern Lifts | Сучасні ліфти

Szafa sterowania mieści się w ramie drzwi szybowych windy

Nowoczesne Windy | Modern Lifts | Сучасні ліфти

Panel jazdy rewizyjnej znajduje się w COP kabiny

Nowoczesne Windy | Modern Lifts | Сучасні ліфти

MONTAŻ WINDY

Nowoczesne Windy | Modern Lifts | Сучасні ліфти

Rama jest montowana w całości i okablowana

Nowoczesne Windy | Modern Lifts | Сучасні ліфти

Ograniczniki i chwytacze są już zamontowane w pakiecie

Nowoczesne Windy | Modern Lifts | Сучасні ліфти

Wysoki poziom montażu wstępnego skraca czas pracy na miejscu i ogranicza możliwość błędów

Nowoczesne Windy | Modern Lifts | Сучасні ліфти
Nowoczesne Windy | Modern Lifts | Сучасні ліфти

KONSERWACJA WINDY

Nowoczesne Windy | Modern Lifts | Сучасні ліфти

100% konserwacji z wnętrza kabiny windy

Nowoczesne Windy | Modern Lifts | Сучасні ліфти

Przestrzeń robocza z dachu kabiny windy przeniesiona została w całości do wnętrza  kabiny, co wpływa na większe bezpieczeństwo konserwatora

Nowoczesne Windy | Modern Lifts | Сучасні ліфти

Całkowity zakaz wchodzenia na dach kabiny windy

Nowoczesne Windy | Modern Lifts | Сучасні ліфти
Nowoczesne Windy | Modern Lifts | Сучасні ліфти
Nowoczesne Windy | Modern Lifts | Сучасні ліфти

RYSUNKI TECHNICZNE

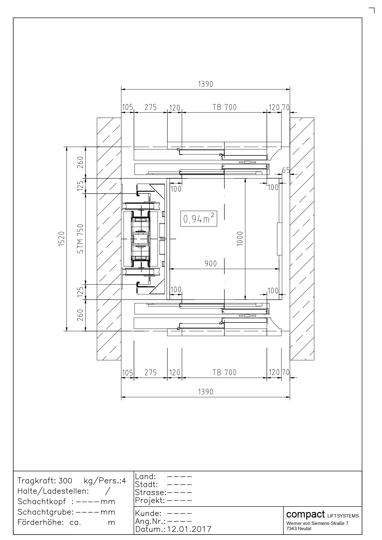
Rzut windy 300kg (4 osoby)

Rzut windy 300kg
(4 osoby)

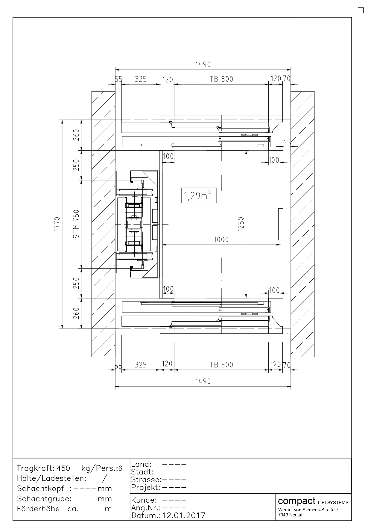
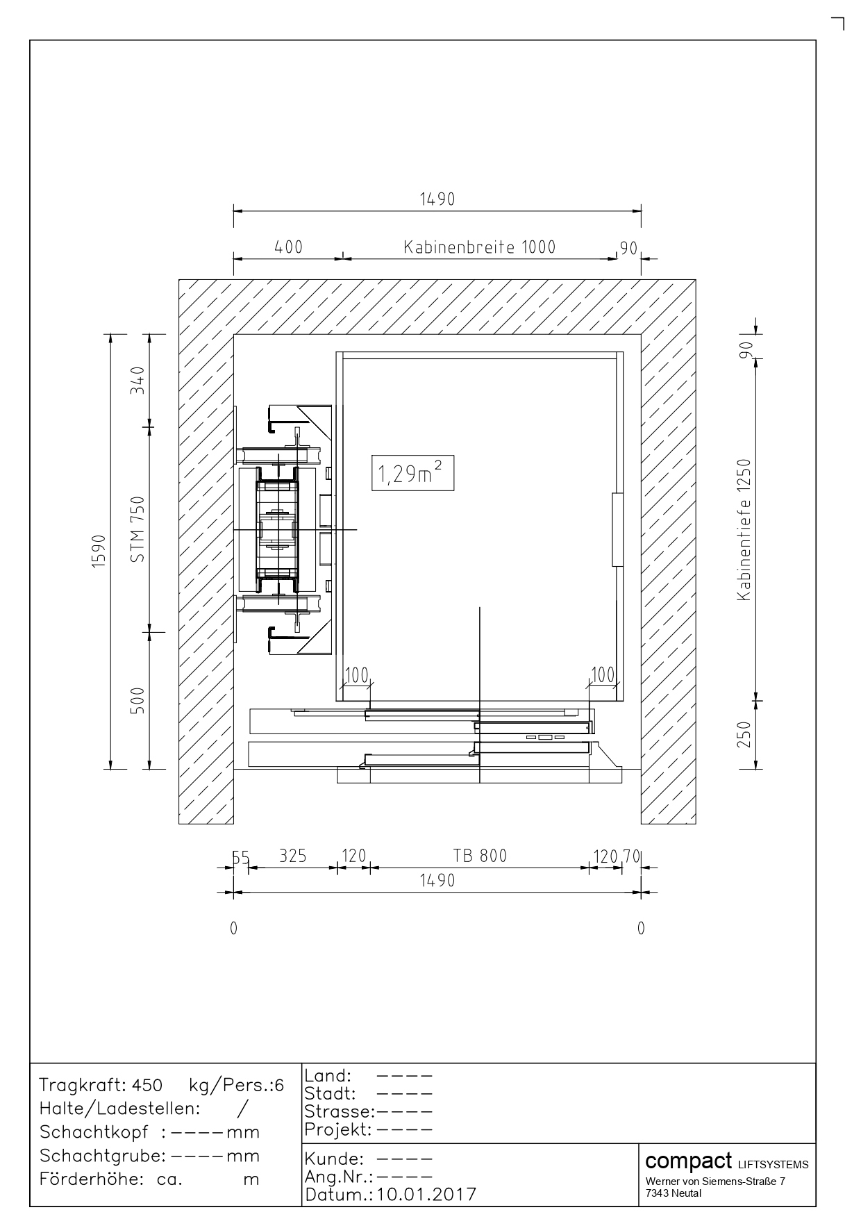
Rzut windy 450kg (6 osób)

Rzut windy 450kg
(6 osób)

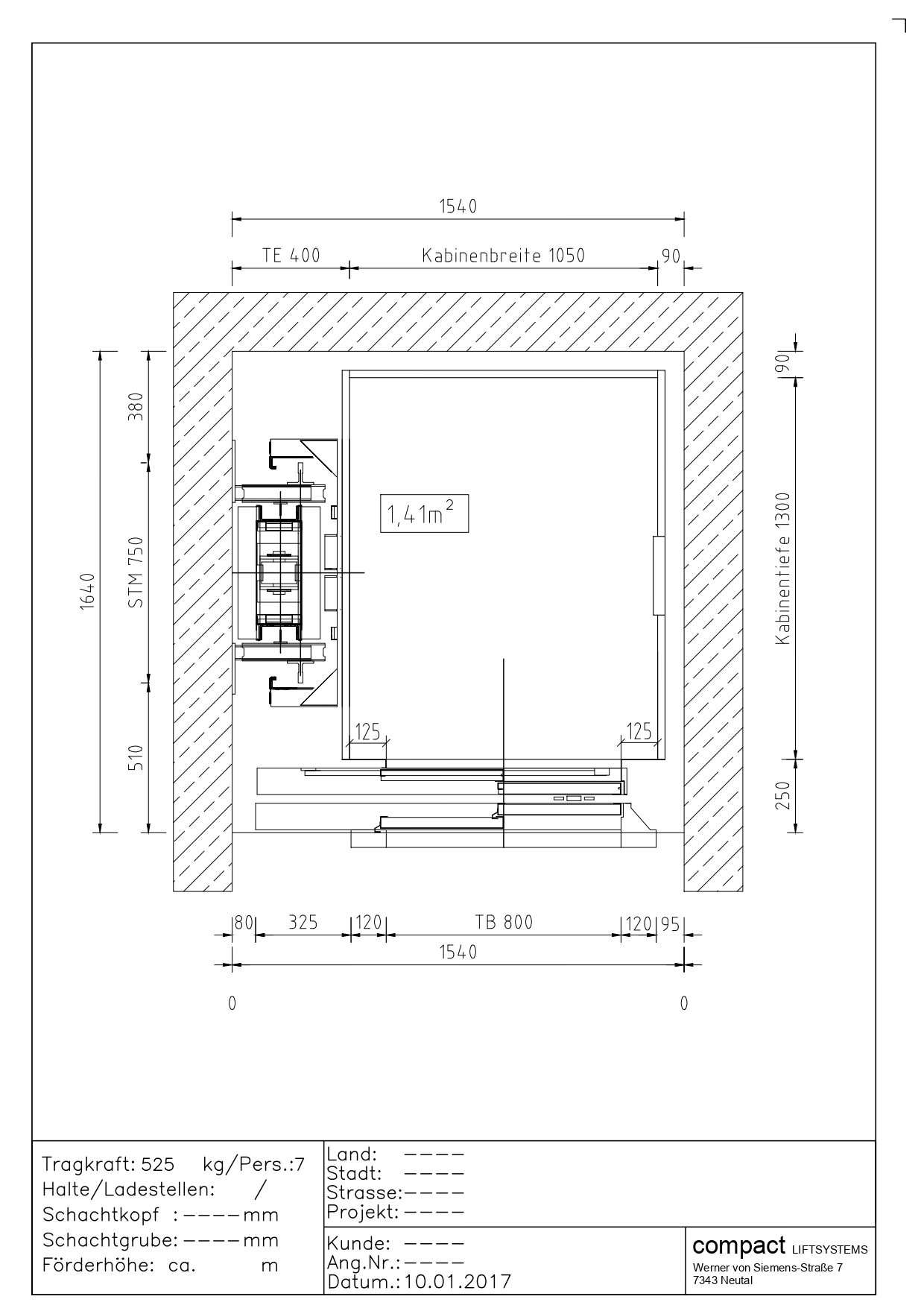
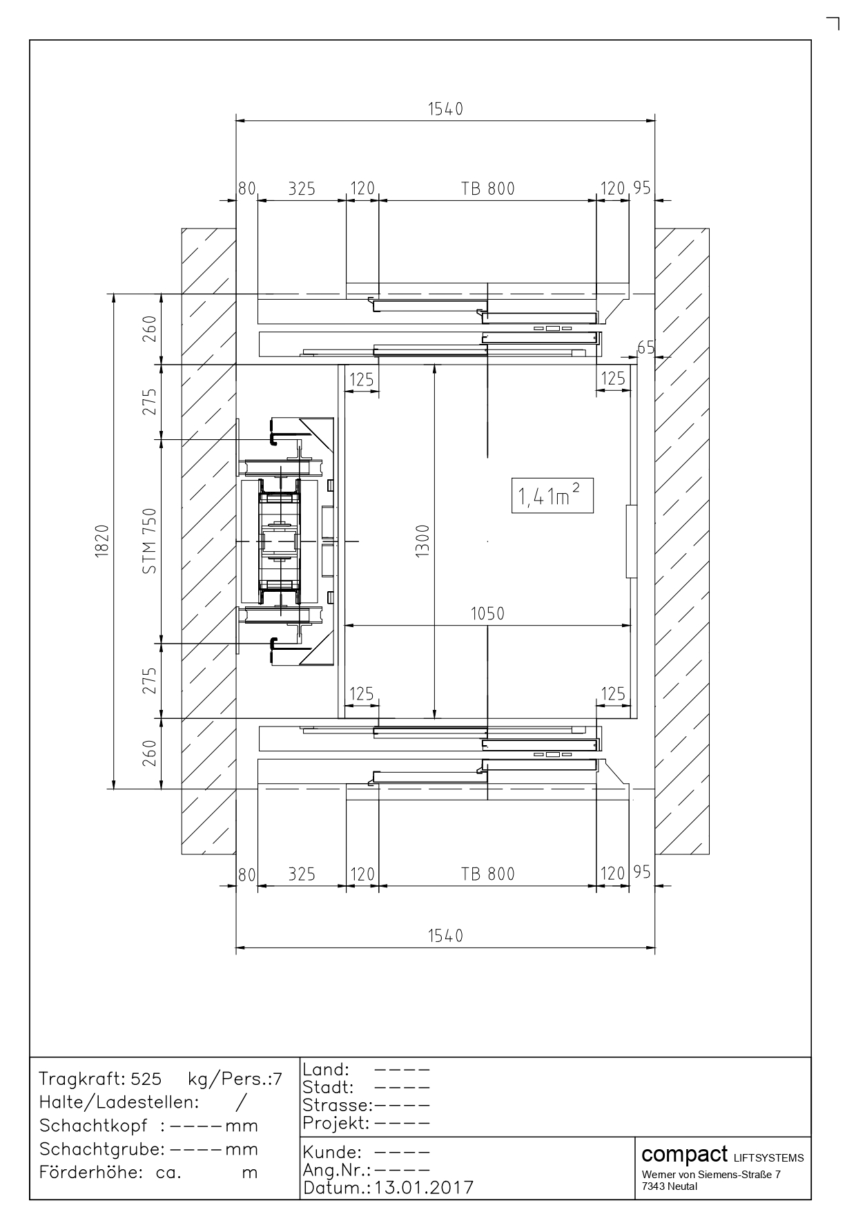
Rzut windy 525kg (7 osób)

Rzut windy 525kg
(7 osób)

Rzut windy 630kg (8 osób)

Rzut windy 630kg
(8 osób)

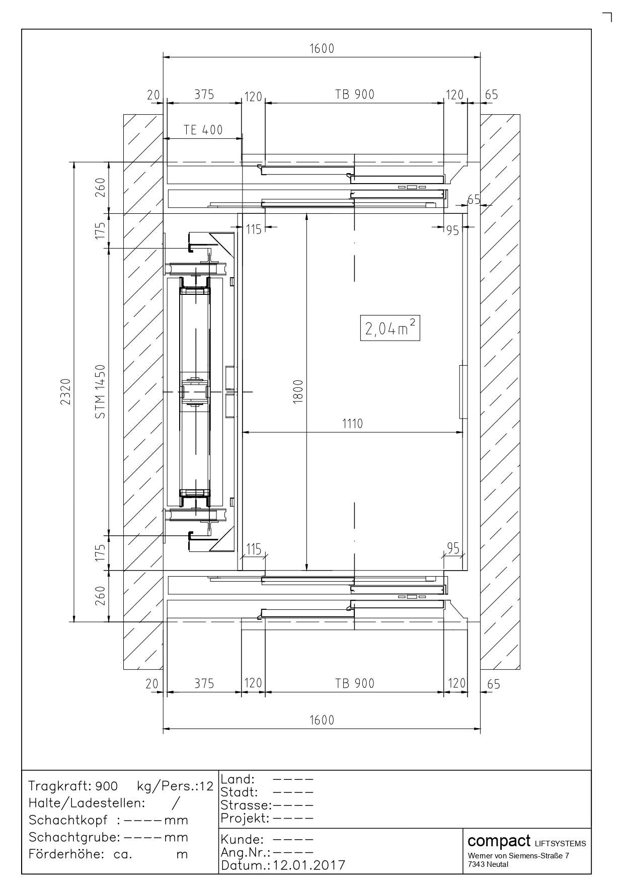
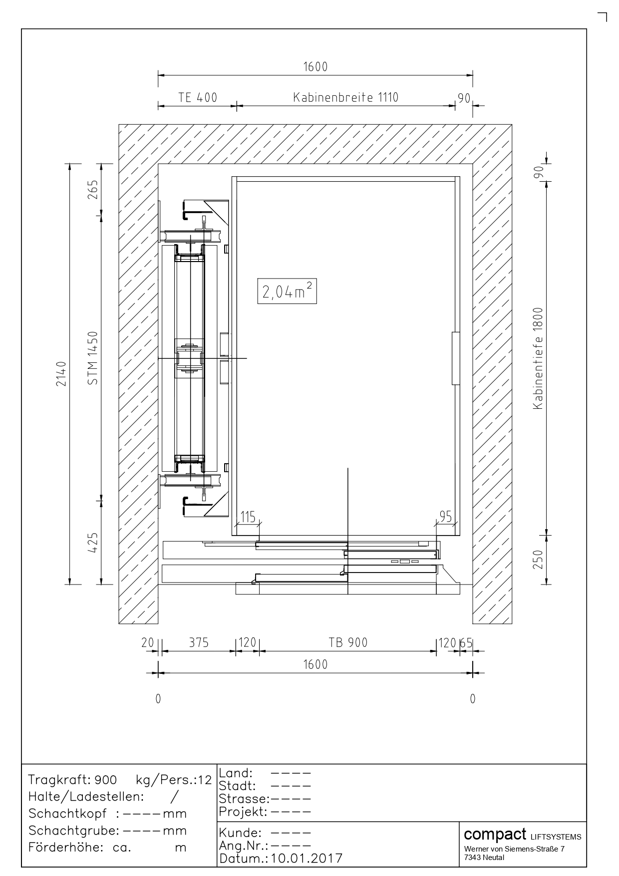
Rzut windy 900kg (12 osób)

Rzut windy 900kg
(12 osób)

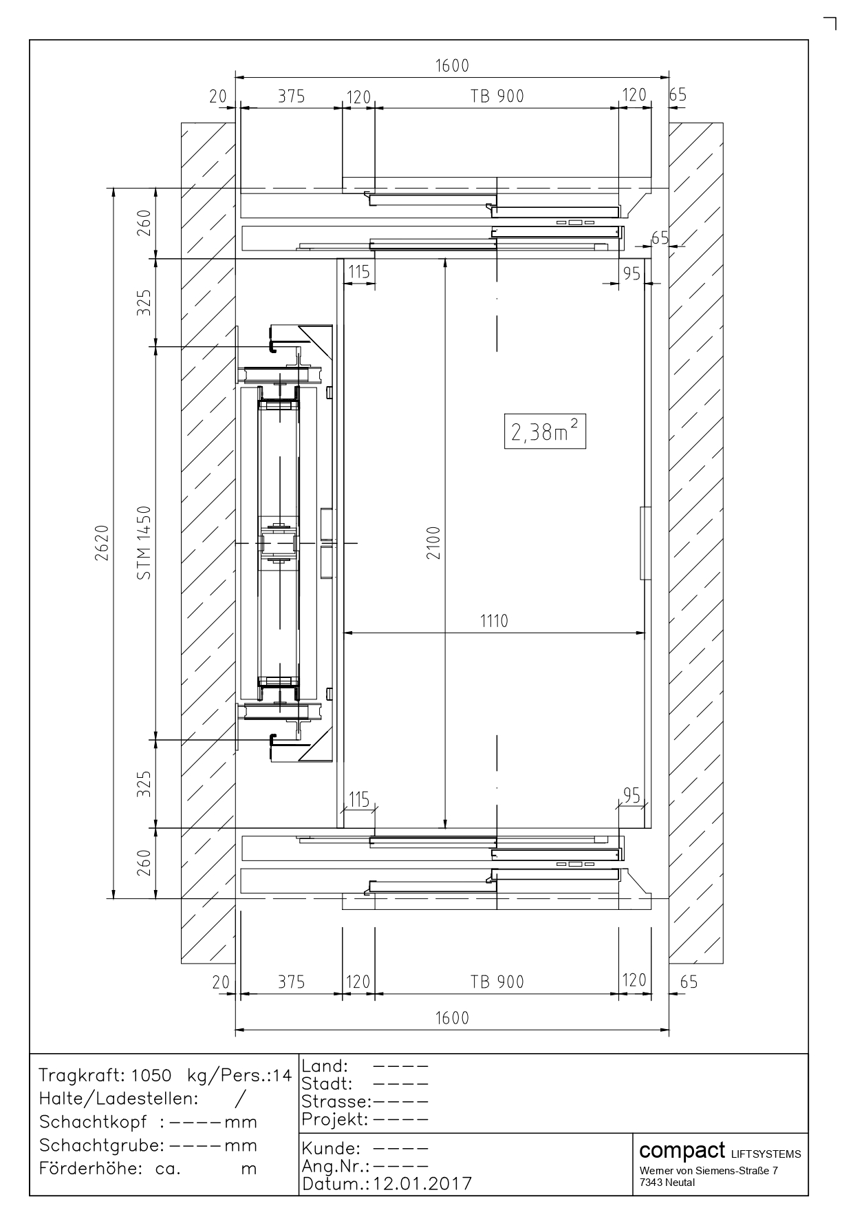
Rzut windy 1050kg (14 osób)

Rzut windy 1050kg
(14 osób)

Rzut windy 300kg (4 osoby)

Rzut windy 300kg
(4 osoby)

Rzut windy 450kg (6 osób)

Rzut windy 450kg
(6 osób)

Rzut windy 525kg (7 osób)

Rzut windy 525kg
(7 osób)

Rzut windy 630kg (8 osób)

Rzut windy 630kg
(8 osób)

Rzut windy 900kg (12 osób)

Rzut windy 900kg
(12 osób)

Rzut windy 1050kg (14 osób)

Rzut windy 1050kg
(14 osób)

Rzut windy 630kg (8 osób)

Rzut windy 630kg (8 osób)

Rzut windy 1050kg (14 osób)

Rzut windy 1050kg (14 osób)

Przekrój windy 675kg (9 osób)

Przekrój windy 675kg (9 osób)

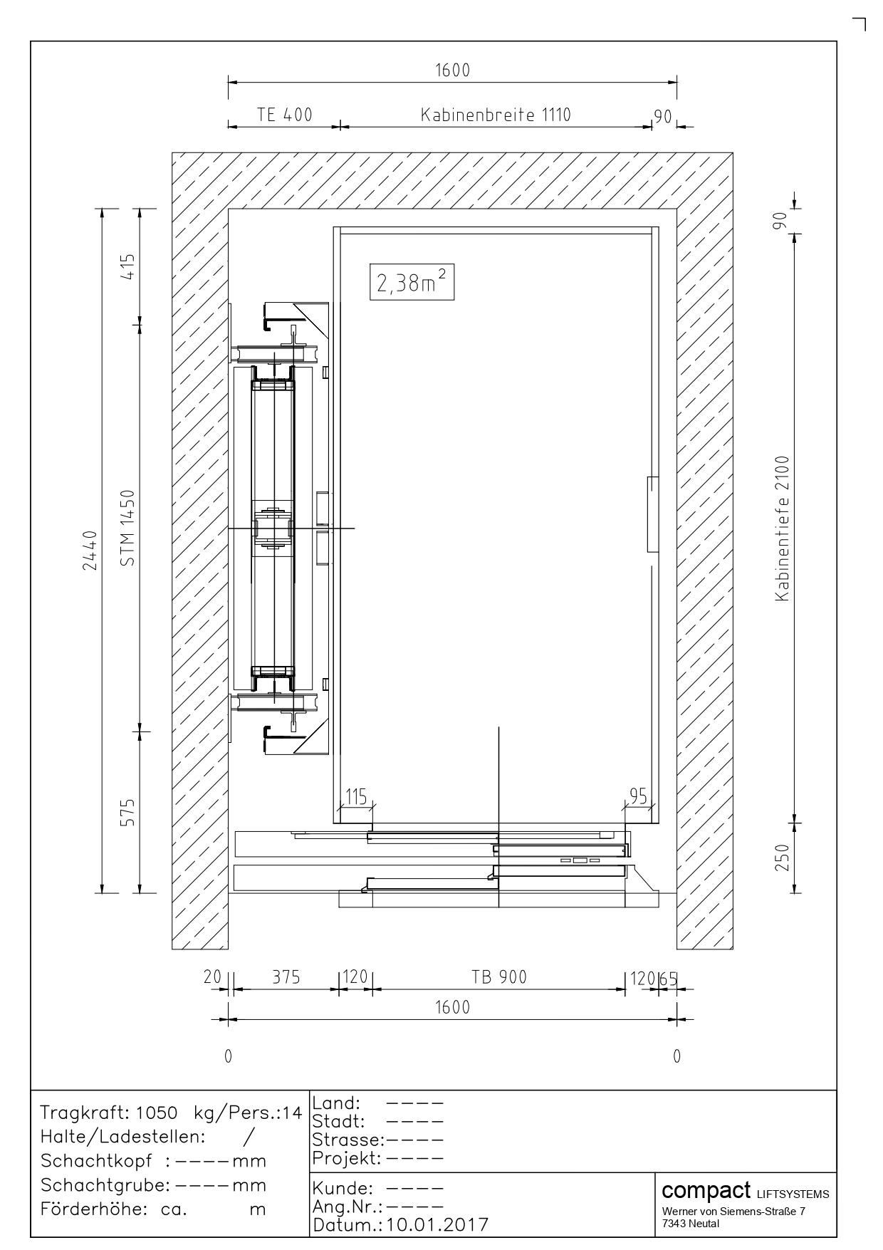
Przekrój windy 1050kg (14 osób)

Przekrój windy 1050kg (14 osób)

Nie ma rysunku, którego szukasz?

POTRZEBUJESZ WIĘCEJ INFORMACJI?

Skontaktuj się z naszym ekspertem, który odpowie na wszystkie Twoje pytania techniczne i doradzi najlepsze rozwiązanie.